Parkwoning (verkocht)

Bouwnummer 11 t/m 16, 31 t/m 37

Er komen 13 parkwoningen, verdeeld over drie woonblokken. Deze parkwoningen hebben een riante breedte van 6,0 meter en een woonoppervlak vanaf ca. 152 tot ca. 165 m2. De kaveloppervlakten variëren van ca. 131 m2 tot 155 m2. 

Er zijn verschillende varianten. Kiest u voor een hoek- of tussenwoning? Of gaat u voor één van de bouwnummers (12, 15, 32 en 36) met een dakopbouw, die niet alleen statig oogt, maar ook extra vierkante meters toevoegt. Welke variant heeft uw voorkeur? 

Kenmerken

  • Parkwoning
  • Breedtemaat 6 meter
  • Woonoppervlakte vanaf ca. 152- 164 m2
  • Kaveloppervlakte vanaf ca. 131- 155 m2
  • Ruime achtertuin op het noord- of zuidoosten
  • Berging in achtertuin
  • Energiezuinig en gasloos
  • Diverse opties om uw droomwoning te realiseren

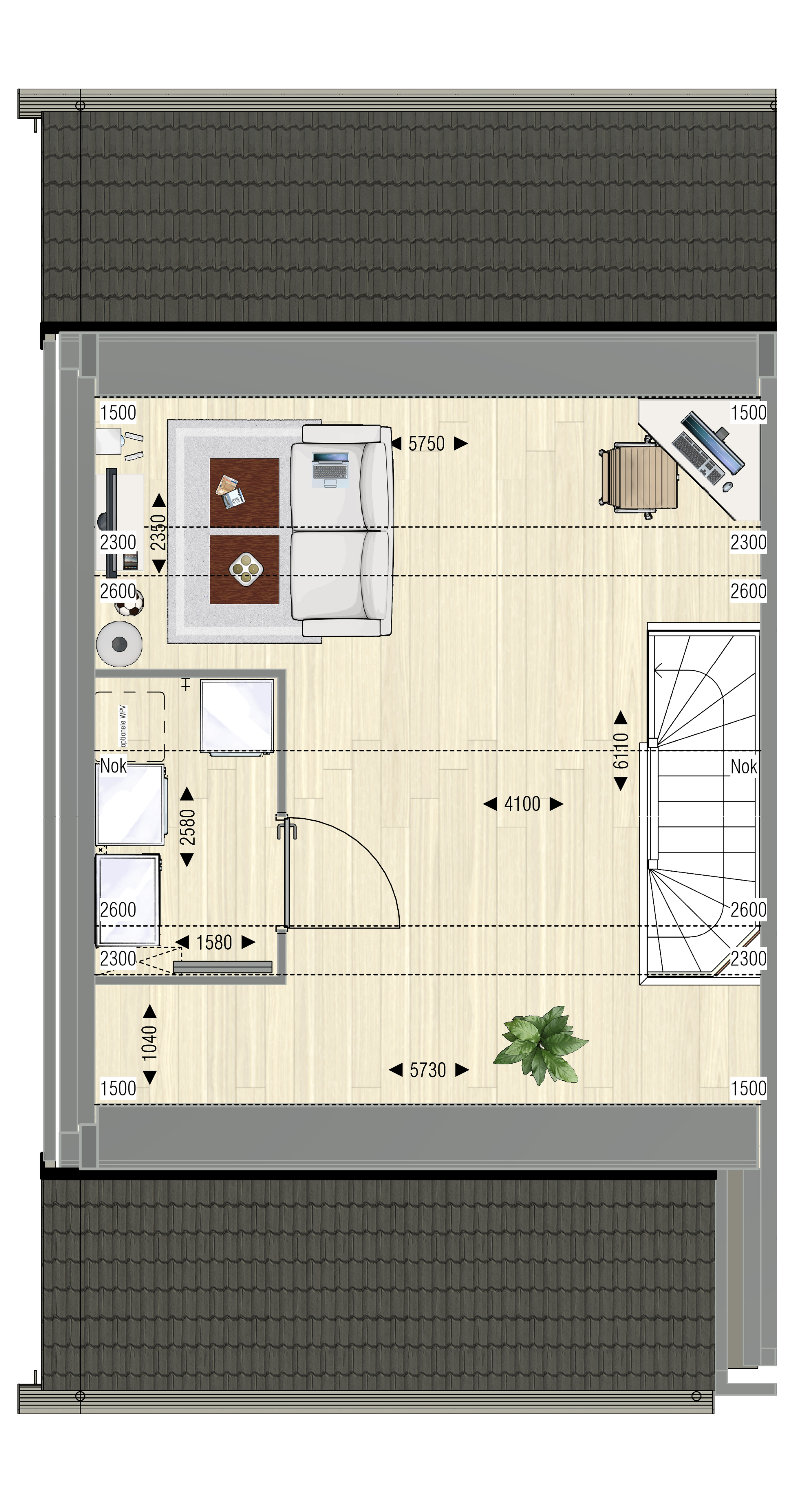
Plattegronden

Bouwnummer 11 14 Bouwnummer 12 13 15 16 (gespiegeld) Begane Grond

Bouwnummer 11 14 Bouwnummer 12 13 15 16 (gespiegeld) Eerste Verdieping

Bouwnummer 11 14 Bouwnummer 13 16 (gespiegeld) Tweede Verdieping

Bouwnummer 12 15 Tweede Verdieping

Bouwnummer 31 33 34 36 Bouwnummer 32 35 37 (gespiegeld) Begane Grond

Bouwnummer 31 33 34 36 Bouwnummer 32 35 37 (gespiegeld) Eerste Verdieping

Bouwnummer 31 33 34 36 Bouwnummer 35 37 (gespiegeld) Tweede Verdieping

Bouwnummer 32 Tweede Verdieping

Bouwnummer Woonopp Tuinligging Prijs
11 152m2 Noordoost Verkocht
12 165m2 Noordoost Verkocht
13 152m2 Noordoost Verkocht
14 152m2 Noordoost Verkocht
15 165m2 Noordoost Verkocht
16 152m2 Noordoost Verkocht
31 152m2 Zuidoost Verkocht
32 164m2 Zuidoost Verkocht
33 152m2 Zuidoost Verkocht
34 152m2 Zuidoost Verkocht
35 152m2 Zuidoost Verkocht
36 164m2 Zuidoost Verkocht
37 152m2 Zuidoost Verkocht

© Thunnissen Groep 2026
De beelden, impressies, maten, oppervlakten en prijzen zijn zo nauwkeurig mogelijk vastgesteld. Aan de indicatieve waarden kunnen geen rechten worden ontleend.
Privacyverklaring